Sonnendurchflutete 5 Zi Wohnung auf 2 Etagen mit 2 Balkonen und 2 Bädern!
Objektart
Adresse
Objektdaten
Informationen
Ausstattung
Details
Sie wohnen hier fast wie im eigenen Haus!
Die Einheit erstreckt sich über das Ober- und Dachgeschoss eines Doppelhauses mit nur einer weiteren Partei im Erdgeschoss. Ruhig gelegen in zweiter Reihe zur Straße.
Diese außergewöhnlich helle und großzügige 5-Zimmer-Wohnung vereint Raum, Komfort und Wohnqualität auf rund 120 m² - perfekt für Familien oder Paare mit Homeoffice-Lösungen. Beste Bausubstanz aus den 1980er Jahren - ein echter Pluspunkt für Wertbeständigkeit mit der vorteilhaften Energieeffizienzklasse D.
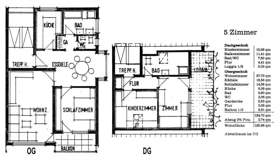
Das Obergeschoss präsentiert sich lichtdurchflutet und bestens durchdacht: drei Zimmer, eine Küche, ein Tageslichtbad, ein Gäste-WC sowie ein sonniger Westbalkon schaffen ideale Bedingungen für entspanntes Wohnen.
Die Küche mit funktionaler Einbauküche liegt direkt links vom Eingang. Von dort öffnet sich der zentrale Essbereich - ein einladender Treffpunkt für Familie, Freunde und gemütliche Abende.
Rechts beeindruckt das weitläufige Wohnzimmer mit vielen Gestaltungsmöglichkeiten und Zugang zum Balkon. Angrenzend befindet sich das Schlafzimmer, ebenfalls mit direktem Austritt ins Freie.
An der Küche vorbei führt der linke Bereich des Geschosses an Garderobe und dem modernisierten Gäste-WC zum ebenfalls modernisierten Tageslichtbad mit Dusche und WC.
Zum Dachgeschoss gelangen Sie über das Treppenhaus,
das mit zwei weiteren Zimmern viel Flexibilität für Wohnen, Arbeiten, Gäste, Hobbys oder Vermietung bietet.
Das Zimmer geradeaus öffnet sich zudem zum großen Südbalkon - ein herrlicher Ort für Sonnenstunden und entspannte Auszeiten.
Auf dieser Etage befindet sich ein weiteres Tageslichtbad mit Dusche, WC und einem Waschmaschinen-Anschluss.
Für eine kleine Küchenzeile sind die Anschlüsse bereits vorhanden. Perfekt als Mietwohnung für Studenten!
Ein TG-Stellplatz , ein großer Kellerraum mit 20m² , eine riesige Waschküche für 2 Parteien sowie ein professioneller Hausmeisterservice für stets gepflegte Außenanlagen runden dieses Angebot ab.
Obergeschoss
- Flur (Laminat)
- Essbereich (Laminat)
- Küche (Fliesenboden)
- Bad (Fliesenboden) mit Dusche, Waschbecken und WC
- Gäste-WC (Fliesenboden)
- Garderobe (Laminat)
- Schlafzimmer (Laminat)
- Wohnzimmer (Laminat)
Dachgeschoss
- Flur (Teppich)
- Zimmer 1 (Teppich)
- Zimmer 2 (Teppich)
- Bad (Fliesenboden), Dusche, Waschbecken, WC, Waschmaschinen-Anschluss
Untergeschoss
- Kellerraum
- Waschküche und Trockenraum
TG-Stellplatz
In der landschaftlich reizvollen Neckarschleife zwischen Ludwigsburg und Heilbronn, 30 Kilometer nördlich der Landeshauptstadt Stuttgart gelegen, hat sich Freiberg in den letzten Jahrzehnten zu einem wichtigen Standort im wirtschaftsstarken mittleren Neckarraum entwickelt und präsentiert sich heute als moderne und lebendige Kleinstadt mit sehr guter Infrastruktur und hoher Lebensqualität.
Freiberg am Neckar verfügt neben einer sehr guten Verkehrsanbindung auch über eine hervorragend ausgebaute Infrastruktur. Auch die sozialen Angebote und eine große Familienfreundlichkeit zeichnen Freiberg am Neckar aus. Mit seinen vielfältigen kulturellen Angeboten, einer bestens ausgebauten Bildungs- und Kinderbetreuungslandschaft sowie zahlreichen Freizeit- und Sportstättenangeboten ist Freiberg ein beliebter, rund 15.500 Einwohner zählender Wohnort, an dem sich Bürgerinnen und Bürger jeden Alters wohl und bestens versorgt fühlen können.
Auch für Firmen und Unternehmen ist Freiberg ein attraktiver Standort. Im direkten Umfeld der wirtschaftlich dynamischen und leistungsstarken Metropolregion Stuttgart ist in Freiberg ein vielfältiger Branchenmix vertreten. Von kleinen Handwerksbetrieben bis hin zu international operierenden Unternehmen reicht dabei die Bandbreite.
Freiberg liegt verkehrsgünstig in der unmittelbaren Nachbarschaft von Ludwigsburg und 20 km nördlich von Stuttgart. Freiberg ist an das S-Bahn-Netz angeschlossen. Die S-Bahnlinie S4 verkehrt über Freiberg von Marbach bis zum Stuttgarter Hauptbahnhof und Stuttgart Schwabstraße. Nach Ludwigsburg und Stuttgart ist Freiberg eine begehrte Wohnlage, insbesondere für Pendler, geworden.
WICHTIG*WICHTIG*WICHTIG*WICHTIG*WICHTIG
Alle Angaben sind ohne Gewähr und basieren ausschließlich auf Informationen, die uns von unserem Auftraggeber zur Verfügung gestellt wurden. Wir übernehmen keine Gewähr für die Vollständigkeit, Richtigkeit und Aktualität dieser Angaben. Für die Richtigkeit der Grundrisse wird keine Gewähr übernommen.
Einhaltung Geldwäschegesetz:
Identifikationspflicht von Immobilienkunden durch unsere Immobilienmakler
Alle Immobilienmakler sind verpflichtet, beim Kauf oder Verkauf einer Immobilie die gesetzlichen Vorgaben des Geldwäschegesetzes einzuhalten und die Identität des Immobilienkunden festzustellen, daher bitten wir Sie um Ihre Mithilfe.
Das Geldwäschegesetz soll verhindern, dass Unternehmen für Geldwäsche oder Terrorismusfinanzierung missbraucht werden. Das heißt, das Einschleusen illegal erwirtschafteter Vermögenswerte in den legalen Wirtschaftskreislauf und die damit einhergehende Verschleierung der wahren Herkunft des Geldes soll dadurch unterbunden werden.
Bitte beachten Sie: Laut Geldwäschegesetz (GWG) §4, sind wir dazu verpflichtet, bereits bei der Besichtigung einer Immobilie die Identität des Interessenten anhand eines gültigen Personalausweises zu prüfen und festzuhalten. Die Legitimationsdaten werden von uns ausschließlich im Rahmen der Geldwäscheprävention erhoben, verarbeitet und genutzt. Nach Ablauf der Aufbewahrungsdauer werden die Daten gelöscht.
Wir bitten Sie daher, zu Besichtigungs- oder Beratungsterminen immer Ihren gültigen Ausweis mitzubringen.
Vielen Dank für Ihr Verständnis und Ihre tatkräftige Unterstützung in dieser Sache.
Ansprechpartner
Mobil: 004917684610462
winkler@immobilienservice-maier.com
Energieausweis (Verbrauchsausweis)
121 kWh / (m²*a) Energieverbrauchskennwert
121 kWh / (m²*a) Energieverbrauchskennwert
121 kWh / (m²*a) Energieverbrauchskennwert
Weitere Informationen
| Wesentlicher Energieträger | Öl |
| Energieausweis gültig bis | 2027-12-27 |
| Energieausweis Jahrgang | ab dem 1.5.2014 |
| Energieausweis Werteklasse | D |
| Energieausweis Baujahr | 1983 |
| Energieausweis Gebäudeart | Wohngebäude |
| Heizung | Zentralheizung |
| Befeuerung | Öl |
Ich bin damit einverstanden, dass mir Karten von Google angezeigt werden. Es gelten die Datenschutzbedingungen von Google (https://policies.google.com/privacy).
Ich bin einverstanden