Objektart
Adresse
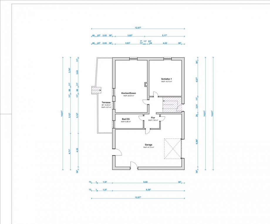
Objektdaten
Informationen
Ausstattung
Details
Herzlich Willkommen in Ihrem neuen Einfamilienhaus auf einem großzügigen Grundstück von ca. 847 m² in Massenbach.
Das Haus befindet sich in einem sanierungsbedürftigen Zustand und bietet die ideale Gelegenheit für eigene Ideen und individuelle Erweiterungen. In diesem Haus lohnt sich Ihre Investition in die Zukunft, um Ihr neues Zuhause ganz nach Ihren Wünschen gestalten zu können.
Die angrenzende Scheune bietet Ihnen viel Stauraum, ermöglicht Ihnen eventuell den Traum von einer eigenen kleinen Werkstatt mit Hebebühne und bietet Ihnen Platz für vielfältige Nutzungsmöglichkeiten. Es gibt zusätzlich noch eine weitere Garage sowie zwei PKW-Außenstellplätte links und rechts vom Haus.
Der großzügige Garten in Hanglage hinter dem Haus bietet Ihnen eine blickdichte, grüne Oase mitten in Massenbach und sorgt für viel Freiraum zum Spielen, Entspannen und Gestalten - ideal für Familien, Gartenliebhaber und Hobbygärter.
Jetzt Besichtigung vereinbaren - wir freuen uns auf Ihre Anfrage!
- Einbauküche inkl. Elektrogeräte
- Offener Wohn- Essbereich
- 3 Schlafzimmer
- 1 Büro
- 1Tageslichtbad mit Dusche, Waschbecken und WC
- 1 Tageslichtbad mit Badewanne, Waschbecken, Bidet und WC
- teilweise Kunststofffenster mit 2-facher Verglasung
- teilweise Holzfenster mit 1-facher Verglasung
- Fliesen, Laminat sowie Teppichböden
- 2 PKW Stellplätze neben dem Haus
- Scheune mit PKW Hebebühne
- Garage
- Gewölbekeller
2006:
- Erneuerung der Elektrik, der Wasserleitungen und der Heizungsleitungen
- Erneuerung der Wandbeläge und der Böden inkl. Estrich
2007:
- Modernisierung des Badezimmers im Erdgeschoss
2015:
- Modernisierung des Badezimmers im Obergeschoss
2018:
- Neuanstrich der Außenfassade
*****************************
Wünschen Sie einen Besichtigungstermin?
-> Bitte senden Sie eine Anfrage über das Portal mit Vor-/Nachname, Anschrift, Telefonnummer und Emailadresse. Automatisch erhalten Sie eine Antwortmail mit dem Link zu dem Exposé.
Antwortmail mit Link zu dem Exposé erhalten?
-> Bestätigen Sie unsere AGB, Provisionsvereinbarung und Widerrufsbelehrung um das Exposé zu erhalten.
Achtung! Bitte überprüfen Sie auch Ihren Spamordner sollten Sie zeitnah keine Antwort erhalten haben!
Objekt und Lage gefallen?
-> Antworten Sie auf diese E-Mail mit dem Exposé und lassen Sie uns wissen, ob Sie einen Besichtigungstermin und/oder weitere Unterlagen zum Objekt wünschen. Den Ansprechpartner des Objekts finden Sie auf der letzten Seite des Exposés.
Sobald wir Ihre Email erhalten haben, werden wir Ihr Anliegen umgehend bearbeiten und Sie per Mail oder telefonisch kontaktieren.
*****************************
Massenbach liegt etwa zwei Kilometer nördlich von Schwaigern in der Talsenke des Biberbachs und gehört zum Landkreis Heilbronn. Vor Ort befindet sich eine Einkaufsmöglichkeit, welche Ihnen auch Fußläufig für Ihre täglichen Einkäufe zur Verfügung steht. In Schwaigern selbst befinden sich Schulen sowie Kindergärten und sind problemlos zu erreichen. Schwaigern befindet sich zudem in einer sehr verkehrsgünstigen Lage. Neben der nahegelegenen Autobahn steht Ihnen zudem noch eine Stadtbahnverbindung zur Verfügung.
Das Haus selbst befindet sich in einer wenig befahrenen Straße aber dennoch zentral gelegen in Massenbach. Felder und Wiesen sind in wenigen Minuten fußläufig erreichbar.
WICHTIG*WICHTIG*WICHTIG*WICHTIG*WICHTIG
Alle Angaben sind ohne Gewähr und basieren ausschließlich auf Informationen, die uns von unserem Auftraggeber zur Verfügung gestellt wurden. Wir übernehmen keine Gewähr für die Vollständigkeit, Richtigkeit und Aktualität dieser Angaben. Für die Richtigkeit der Grundrisse wird keine Gewähr übernommen.
Einhaltung Geldwäschegesetz:
Identifikationspflicht von Immobilienkunden durch unsere Immobilienmakler
Alle Immobilienmakler sind verpflichtet, beim Kauf oder Verkauf einer Immobilie die gesetzlichen Vorgaben des Geldwäschegesetzes einzuhalten und die Identität des Immobilienkunden festzustellen, daher bitten wir Sie um Ihre Mithilfe.
Das Geldwäschegesetz soll verhindern, dass Unternehmen für Geldwäsche oder Terrorismusfinanzierung missbraucht werden. Das heißt, das Einschleusen illegal erwirtschafteter Vermögenswerte in den legalen Wirtschaftskreislauf und die damit einhergehende Verschleierung der wahren Herkunft des Geldes soll dadurch unterbunden werden.
Bitte beachten Sie: Laut Geldwäschegesetz (GWG) §4, sind wir dazu verpflichtet, bereits bei der Besichtigung einer Immobilie die Identität des Interessenten anhand eines gültigen Personalausweises zu prüfen und festzuhalten. Die Legitimationsdaten werden von uns ausschließlich im Rahmen der Geldwäscheprävention erhoben, verarbeitet und genutzt. Nach Ablauf der Aufbewahrungsdauer werden die Daten gelöscht.
Wir bitten Sie daher, zu Besichtigungs- oder Beratungsterminen immer Ihren gültigen Ausweis mitzubringen.
Vielen Dank für Ihr Verständnis und Ihre tatkräftige Unterstützung in dieser Sache.
Ansprechpartner
Mobil: 004915734369477
kekec-feil@immobilienservice-maier.com
Ich bin damit einverstanden, dass mir Karten von Google angezeigt werden. Es gelten die Datenschutzbedingungen von Google (https://policies.google.com/privacy).
Ich bin einverstanden