Objektart
Adresse
Objektdaten
Informationen
Ausstattung
Details
Diese stilvolle 2-Zimmer-Wohnung im 1. Obergeschoss in Vaihingen an der Enz vereint historischen Charme mit modernem Wohnkomfort auf besondere Weise. Das Gebäude, ein ehemaliger "Judenstall", wurde in den Jahren 2020 bis 2025 aufwendig und umfassend kernsaniert und präsentiert sich heute in einem hochwertigen, zeitgemäßen Zustand.
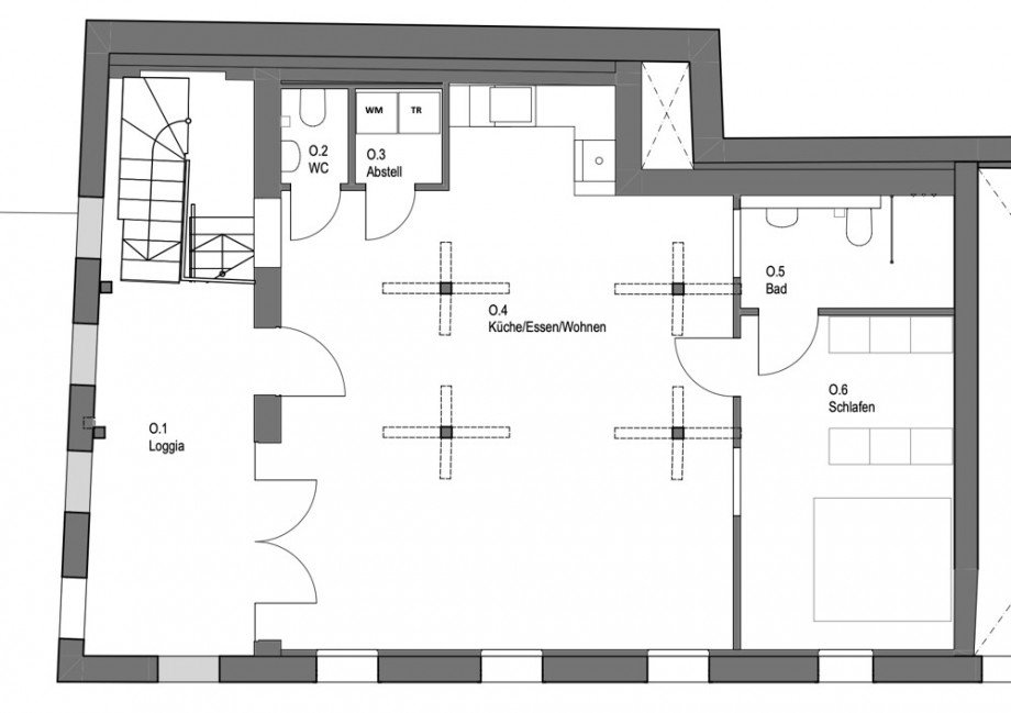
Auf ca. 77,74 m² Wohnfläche bietet die Wohnung eine durchdachte Raumaufteilung mit zwei gut geschnittenen Zimmern, die vielseitig nutzbar sind. Die hellen Wohnräume schaffen eine angenehme und einladende Atmosphäre. Für zusätzlichen Komfort sorgt eine moderne Fußbodenheizung, die in allen Bereichen für ein gleichmäßiges und behagliches Raumklima sorgt.
Das Badezimmer überzeugt mit einer großzügigen, bodenebenen Dusche und zeitgemäßer Ausstattung. Ergänzt wird dies durch eine separate Toilette, die den Wohnkomfort zusätzlich erhöht. Ein praktischer Abstellraum mit Waschmaschinenanschluss bietet wertvollen Stauraum und funktionale Alltagstauglichkeit. Die gemütliche Loggia lädt zum Entspannen ein und bietet einen angenehmen Rückzugsort im Freien.
Bitte beachten Sie, dass keine Einbauküche vorhanden ist. Diese ist vom Mieter auf eigene Kosten zu beschaffen und individuell zu gestalten, wodurch Sie die Möglichkeit haben, die Küche ganz nach Ihren persönlichen Vorstellungen einzurichten.
Die Wohnung befindet sich in einer der charmantesten Lagen von Vaihingen an der Enz, mitten im historischen Altstadtkern. Die Umgebung ist geprägt von liebevoll restaurierten Fachwerkhäusern, kleinen Gassen und einem besonderen, gewachsenen Stadtbild.
Wenn Sie Interesse an einem Besichtigungstermin haben, bitten wir um eine schriftliche Anfrage über das Portal mit folgenden Angaben:
- Ihre vollständige Anschrift
- Berufliche Tätigkeit
- Alter
- Geplante Mietdauer
- Haustierhaltung (falls zutreffend)
- Anzahl der einziehenden Personen
Wir freuen uns auf Ihre Anfrage!
Ausstattung:
- ca. 77,74 m² Wohnfläche
- zwei gut geschnittene Zimmer
- Fußbodenheizung in allen Wohnbereichen
- modernes Badezimmer mit bodenebener Dusche
- separate Toilette
- praktischer Abstellraum mit Waschmaschinenanschluss
- gemütliche Loggia
- hochwertig kernsaniertes Gebäude (2020-2025)
- gelungene Kombination aus historischem Flair und - moderner Ausstattung
Besonderheiten:
- Wohnen in einem aufwendig sanierten historischen Gebäude
- einzigartiger Charakter durch die Geschichte des Hauses
- ruhige und dennoch zentrale Lage in der Altstadt
modernes Wohnen auf aktuellem energetischem Standard
Die monatliche Kaltmiete beträgt 1.000 EUR, zuzüglich 200 EUR Nebenkostenvorauszahlung.
Die Kaution beläuft sich auf 2.000 EUR.
Mindestmietzeit 18 Monate
Die Wohnung befindet sich im historischen Stadtkern von Vaihingen an der Enz. Die Umgebung ist geprägt von liebevoll restaurierten Fachwerkhäusern, kleinen Gassen und einem besonderen, gewachsenen Stadtbild.
Alle Einrichtungen des täglichen Bedarfs sind bequem fußläufig erreichbar: Bäckereien, Cafés, Restaurants sowie diverse Einkaufsmöglichkeiten befinden sich in unmittelbarer Nähe. Auch Ärzte, Apotheken und Banken sind schnell erreichbar.
Vaihingen an der Enz bietet zudem eine sehr gute Infrastruktur mit Kindergärten, Schulen und vielfältigen Freizeitmöglichkeiten. Die nahegelegene Enz lädt zu Spaziergängen und sportlichen Aktivitäten im Grünen ein.
Durch die gute Verkehrsanbindung - sowohl mit dem Auto als auch mit öffentlichen Verkehrsmitteln - sind umliegende Städte wie Ludwigsburg, Pforzheim und Stuttgart schnell erreichbar. Der Bahnhof Vaihingen (Enz) mit ICE-Anschluss sorgt zusätzlich für eine hervorragende überregionale Anbindung.
*WICHTIG*WICHTIG*WICHTIG*WICHTIG*WICHTIG*
Bitte beachten Sie, dass wir nur schriftliche Anfragen über das Portal mit Angabe Ihrer vollständigen Anschrift bearbeiten können.
Zusätzlich bitten wir Sie Angaben bez. Ihrer derzeitig ausgeübten Tätigkeit, Ihres Alters, der angedachten Mietdauer, Haltung von Tieren und der Personenanzahl zu machen.
Besichtigungstermine sind grundsätzlich kostenfrei.
Gerne können Sie sich kostenfrei und unverbindlich in unsere Kundensuchkartei eintragen. Besuchen Sie dazu unsere Internetseite www.immobilienservice-maier.de und tragen Sie sich unter der Rubrik "Für Suchende" ein. Sobald wir Ihnen ein passendes Objekt anbieten können, werden wir Sie umgehend informieren.
Alle Angaben sind ohne Gewähr und basieren ausschließlich auf Informationen, die uns von unserem Auftraggeber zur Verfügung gestellt wurden. Wir übernehmen keine Gewähr für die Vollständigkeit, Richtigkeit und Aktualität dieser Angaben.
Ansprechpartner
Telefax: 004971412391497
herter@immobilienservice-maier.com
Downloads
Energieausweis (Bedarfsausweis)
9,20 kWh / (m²*a) Endenergiebedarf
9,20 kWh / (m²*a) Endenergiebedarf
9,20 kWh / (m²*a) Endenergiebedarf
Weitere Informationen
| Wesentlicher Energieträger | Windenergie |
| Energieausweis gültig bis | 2036-04-08 |
| Energieausweis Jahrgang | ab dem 1.5.2014 |
| Energieausweis Werteklasse | A+ |
| Energieausweis Baujahr | 1750 |
| Energieausweis Gebäudeart | Wohngebäude |
| Heizung | Fußbodenheizung |
| Befeuerung | Elektro |
Ich bin damit einverstanden, dass mir Karten von Google angezeigt werden. Es gelten die Datenschutzbedingungen von Google (https://policies.google.com/privacy).
Ich bin einverstanden